Cầm trên tay bộ hồ sơ thiết kế dày cộp, nhiều gia chủ cảm thấy như đang lạc vào một "ma trận" với chằng chịt các đường nét, con số và ký hiệu lạ lẫm. Tuy nhiên, việc hiểu rõ cách đọc bản vẽ xây dựng không chỉ là nhiệm vụ của kỹ sư hay kiến trúc sư, mà còn là kỹ năng thiết yếu đối với chính chủ nhà.
Tại sao vậy? Vì khi hiểu được ngôn ngữ của bản vẽ, bạn mới có thể giám sát được nhà thầu có làm đúng thiết kế hay không, vật tư có được sử dụng đúng chủng loại hay không và quan trọng nhất là hình dung được ngôi nhà tương lai của mình sẽ hoạt động như thế nào.
Với kinh nghiệm thực chiến tại hàng trăm công trình của KHC, tôi sẽ hướng dẫn bạn phương pháp đơn giản nhất để giải mã bộ hồ sơ này. Bài viết sẽ đi sâu vào từng phần: kiến trúc, kết cấu và điện nước, giúp bạn tự tin trao đổi với đơn vị thi công.

Nguyên Tắc Chung Khi Xem Bản Vẽ Thiết Kế Nhà
Trước khi đi vào chi tiết, bạn cần nắm vững quy trình đọc. Một bộ hồ sơ thiết kế hoàn chỉnh thường bao gồm 3 phần chính theo thứ tự: Kiến trúc (KT), Kết cấu (KC) và Điện nước (M&E).
Để cách xem bản vẽ thiết kế nhà đạt hiệu quả cao nhất, bạn không nên đọc "nhảy cóc". Hãy tuân thủ trình tự sau:
- Đọc bản vẽ mặt bằng trước: Để hình dung bố trí công năng.
- Đọc bản vẽ mặt đứng: Để xem hình dáng bên ngoài.
- Đọc bản vẽ mặt cắt: Để hiểu cao độ tầng và cấu tạo sàn/mái.
- Đọc bản vẽ kết cấu: Để kiểm tra độ vững chắc (sắt, thép, cột).
>> Một lưu ý quan trọng là các bản vẽ thường được thể hiện ở hình chiếu trục đo. Hãy tưởng tượng bạn đang nhìn ngôi nhà từ trên cao xuống (mặt bằng), nhìn trực diện từ ngoài vào (mặt đứng) hoặc nhìn một nhát cắt ngang qua ngôi nhà (mặt cắt).

Các Ký Hiệu Viết Tắt Thông Dụng Trong Bản Vẽ
Rào cản lớn nhất khiến chủ nhà "đau đầu" chính là các ký hiệu trong bản vẽ xây dựng. Các kiến trúc sư thường sử dụng hệ thống ký hiệu quy chuẩn để tối giản hóa bản vẽ. Việc nắm bắt các ký hiệu này giúp bạn hiểu được 50% nội dung hồ sơ.
Dưới đây là bảng tổng hợp các ký hiệu và từ viết tắt thường gặp nhất mà KHC đã tổng hợp:
Ký Hiệu Về Cấu Kiện Và Vật Liệu
| Ký hiệu | Ý nghĩa | Giải thích chi tiết |
| D | Door (Cửa đi) | Thường đi kèm số hiệu (Ví dụ: D1, D2) để tra cứu kích thước trong bảng thống kê cửa. |
| S | Window (Cửa sổ) | Tương tự cửa đi, S1, S2 chỉ các loại cửa sổ khác nhau. |
| C | Cột (Column) | Cấu kiện chịu lực thẳng đứng. |
| D/Dm | Dầm (Beam) | Cấu kiện chịu lực nằm ngang (đà). |
| M | Móng | Ký hiệu các đài móng (M1, M2...). |
| BTCT | Bê tông cốt thép | Vật liệu chịu lực chính của khung nhà. |
| Gạch kẻ sọc | Tường gạch | Ký hiệu gạch chéo thường biểu thị tường xây (tường 10 hoặc tường 20). |
Ký Hiệu Về Kích Thước Và Cao Độ
- L: Chiều dài.
- W: Chiều rộng.
- H: Chiều cao.
- Cốt 0.000: Thường được tính là cốt nền nhà tầng trệt hoàn thiện.
- Cốt dương (+): Các cao độ cao hơn mốc 0.000 (Ví dụ: +3.600 là sàn lầu 1 cao 3.6m).
- Cốt âm (-): Các cao độ thấp hơn mốc 0.000 (Ví dụ: -1.500 là độ sâu đáy móng hoặc hầm).
>> Mẹo nhỏ từ chuyên gia: Nếu bạn thấy bản vẽ quá phức tạp và không có thời gian để tìm hiểu sâu, việc lựa chọn một đơn vị cung cấp báo giá xây nhà trọn gói uy tín như KHC sẽ giúp bạn giải quyết mọi vấn đề từ thiết kế đến thi công, đảm bảo mọi chi tiết kỹ thuật đều được xử lý chính xác tuyệt đối.
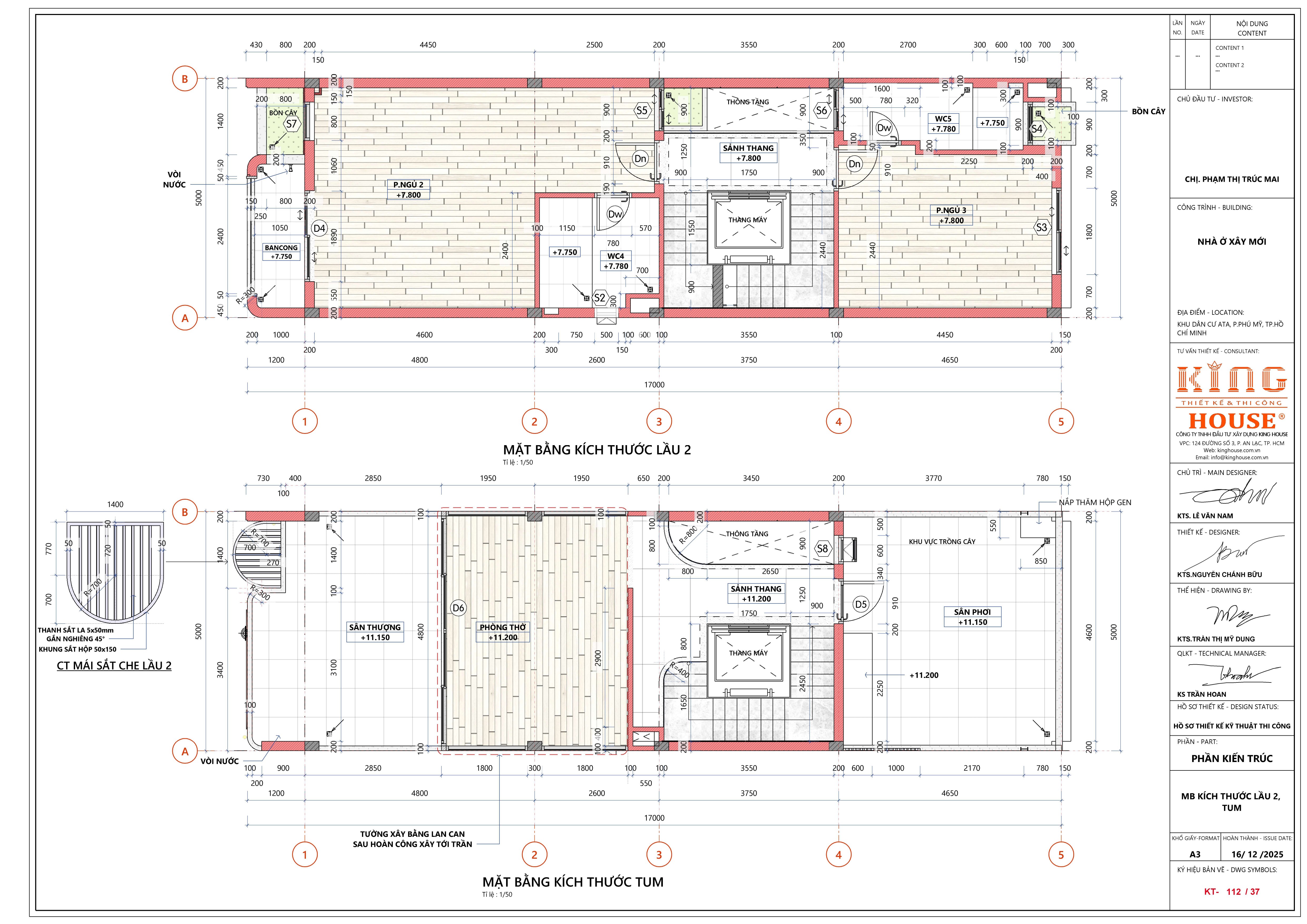
Cách Đọc Mặt Bằng Công Năng
Mặt bằng là hình chiếu quan trọng nhất trong hồ sơ kiến trúc. Hiểu đơn giản, mặt bằng chính là hình ảnh ngôi nhà khi bạn dùng một mặt phẳng cắt ngang qua thân nhà (thường cao hơn mặt sàn khoảng 1.5m) và nhìn từ trên xuống.

Xác Định Trục Và Kích Thước
Khi nhìn vào mặt bằng, bạn sẽ thấy hệ thống lưới trục (A, B, C... và 1, 2, 3...).
- Trục: Giúp định vị các cấu kiện. Ví dụ: Cột C1 nằm ở giao điểm trục A và trục 1.
- Kích thước: Có 3 lớp kích thước chính bạn cần quan tâm:
- Kích thước lọt lòng (thông thủy) từng phòng.
- Kích thước các trục (khoảng cách giữa các tim cột/tường).
- Kích thước tổng thể phủ bì của ngôi nhà.
Cách Xem Tường Xây Và Vách Ngăn
Trong cách đọc bản vẽ xây dựng, việc phân biệt các loại tường là rất quan trọng để tính toán diện tích sử dụng thực tế.
- Nét đậm: Thường biểu thị tường chịu lực hoặc tường bao (dày 220mm).
- Nét mảnh: Biểu thị tường ngăn phòng (dày 110mm) hoặc vách kính.
- Hãy chú ý đến ký hiệu hướng mở cửa (cánh cung). Hướng vòng cung là hướng cánh cửa mở ra. Điều này cực kỳ quan trọng để tránh việc bố trí nội thất bị cấn vào cửa.
Các Ký Hiệu Nội Thất Trên Mặt Bằng
Kiến trúc sư thường vẽ minh họa giường, tủ, bàn ghế vào mặt bằng để bạn hình dung không gian. Tuy nhiên, cần lưu ý đây thường là kích thước tiêu chuẩn. Khi thi công thực tế, bạn cần đo đạc lại để mua đồ nội thất phù hợp, tránh trường hợp "nhìn bản vẽ thì rộng, kê đồ vào thì chật".

Cách Đọc Bản Vẽ Kết Cấu (bố Trí Thép)
Đây là phần khó nhất và mang tính kỹ thuật cao, nhưng lại quyết định sự an toàn của ngôi nhà. Nếu bạn biết đọc bản vẽ kết cấu, bạn có thể giám sát được thầu thợ có "rút ruột công trình" hay thi công sai lệch hay không.

Đọc Bản Vẽ Móng
- Mặt bằng móng: Cho biết vị trí các đài móng, dầm móng (đà kiềng).
- Chi tiết móng: Cần chú ý đến cao độ đáy móng (sâu bao nhiêu so với đất tự nhiên) và kích thước đài móng.
- Thép móng: Thường ký hiệu là Φ (Fi - đường kính thép) và a (khoảng cách).
>> Ví dụ: Φ12a150 nghĩa là: Thép đường kính 12mm, đan cách nhau mỗi cây 150mm.
Cách Xem Bố Trí Thép Dầm, Cột, Sàn
Trong bản vẽ kết cấu, các thanh thép thường được đánh số thứ tự (1, 2, 3...). Bạn cần đối chiếu số thứ tự này với "Bảng thống kê cốt thép" ở góc bản vẽ để biết chính xác loại thép, đường kính và số lượng.
Quy tắc đọc cốt thép cơ bản:
- Lớp bảo vệ: Là khoảng cách từ mép ngoài bê tông đến mép ngoài cốt thép (thường là 2-3cm). Lớp này bảo vệ thép không bị rỉ sét.
- Thép chủ: Là các thanh thép chịu lực chính (thường có đường kính lớn, Φ16, Φ18, Φ20).
- Thép đai: Là thép nhỏ (Φ6, Φ8) bao quanh thép chủ để giữ khung, thường có mật độ dày ở gần gối cột và thưa hơn ở giữa dầm.
>> Ví dụ thực tế: Trên bản vẽ dầm ghi "2Φ20 + 2Φ18". Nghĩa là cây dầm đó sử dụng 2 thanh thép đường kính 20mm và 2 thanh thép đường kính 18mm chạy suốt chiều dài.
Cách đọc bản vẽ điện nước (M&E)
Bản vẽ điện nước (M&E) ảnh hưởng trực tiếp đến sự tiện nghi trong sinh hoạt hàng ngày. Cách xem bản vẽ thiết kế nhà phần M&E cần tập trung vào vị trí và cao độ.
Phần Điện
Bạn cần quan tâm đến các ký hiệu sau:
- Vị trí công tắc, ổ cắm: Xem cao độ đặt đế âm. Thông thường công tắc cao 1.2m - 1.4m, ổ cắm cao 0.3m - 0.4m (trừ ổ cắm bếp hoặc bàn thờ).
- Đường đi dây: Nét đứt thường thể hiện dây đi ngầm dưới sàn hoặc trong trần, nét liền thể hiện dây đi nổi hoặc đi trong tường.
- CB (Aptomat): Vị trí tủ điện tổng và các tủ điện tầng.

Phần Nước
- Hệ thống cấp nước: Đường ống dẫn nước sạch từ bồn chứa đến các thiết bị (thường dùng ống PPR). Chú ý đường kính ống (Φ25, Φ32...).
- Hệ thống thoát nước: Quan trọng nhất là độ dốc (i). Bản vẽ thường quy định độ dốc tối thiểu (ví dụ i=1% hoặc 2%) để nước thải không bị tắc nghẽn.
- Hố ga, bể phốt: Cần xác định chính xác vị trí đặt bể phốt để tránh phạm vào phong thủy (như đặt dưới bếp, dưới bàn thờ) và thuận tiện cho việc hút hầm cầu sau này.

Phân Biệt Bản Vẽ Xin Phép Xây Dựng Và Bản Vẽ Thi Công
Rất nhiều gia chủ nhầm lẫn giữa hai loại bản vẽ này. Là một đơn vị chuyên nghiệp, KHC muốn làm rõ để bạn không bị bỡ ngỡ:
1. Bản vẽ xin phép xây dựng:
- Mục đích: Nộp cho cơ quan nhà nước (UBND Quận/Huyện) để xin cấp phép.
- Nội dung: Chủ yếu thể hiện các thông số về quy hoạch như: Mật độ xây dựng, chiều cao tầng, khoảng lùi, chỉ giới đường đỏ, mặt đứng chính và hệ thống xử lý nước thải.
- Độ chi tiết: Thấp, không dùng để thi công được.
2. Bản vẽ thiết kế thi công (Hồ sơ thiết kế kỹ thuật):
- Mục đích: Dùng để thợ xây dựng nhìn vào và thi công thực tế.
- Nội dung: Đầy đủ Kiến trúc, Kết cấu, Điện nước, Phối cảnh 3D nội ngoại thất.
- Độ chi tiết: Cực kỳ cao, chi tiết đến từng viên gạch ốp lát, từng mối nối thép.
Do đó, khi tìm dịch vụ xây nhà trọn gói, bạn cần đảm bảo nhà thầu cung cấp đầy đủ bộ hồ sơ thiết kế thi công chứ không chỉ dừng lại ở bản vẽ xin phép.

Những Sai Lầm Thường Gặp Khi Chủ Nhà Tự Đọc Bản Vẽ
Dù đã nắm được cách đọc bản vẽ xây dựng, nhưng "trăm hay không bằng tay quen", những người không chuyên vẫn dễ mắc các lỗi sau:
-
Nhầm lẫn kích thước Phủ bì và Lọt lòng: Đây là lỗi phổ biến nhất. Ví dụ, phòng ngủ trên bản vẽ ghi 3m, nhưng đó là kích thước tim tường. Sau khi tô trát hoàn thiện, kích thước lọt lòng sử dụng chỉ còn khoảng 2.8m. Điều này dẫn đến việc mua tủ giường bị chật.
-
Không chú ý đến cao độ dầm: Trên mặt bằng thấy phòng rộng, nhưng không để ý có cây đà (dầm) băng ngang qua trên cao. Khi hoàn thiện đóng trần thạch cao che dầm sẽ làm thấp trần, hoặc gây cảm giác bị "đè" khi ngủ nếu dầm nằm ngay trên giường.
-
Bỏ qua chi tiết chống thấm: Trong bản vẽ kết cấu/kiến trúc sàn vệ sinh, ban công thường có chi tiết chống thấm (lớp vữa, Sika, màng khò...). Nếu chủ nhà không biết đọc để nhắc nhở thợ, rất dễ bị thấm dột sau này.
Việc trang bị kiến thức về cách đọc bản vẽ xây dựng là một khoản đầu tư trí tuệ xứng đáng cho ngôi nhà mơ ước của bạn. Nó giúp bạn chuyển từ vị thế "người ngoài cuộc" thành người làm chủ, kiểm soát được chất lượng và chi phí của công trình.
Tuy nhiên, xây nhà là một quy trình phức tạp gồm hàng ngàn chi tiết. Việc đọc hiểu bản vẽ chỉ là bước khởi đầu. Để đảm bảo ngôi nhà được thi công chuẩn xác 100% theo thiết kế, an toàn về kết cấu và thẩm mỹ về kiến trúc, sự đồng hành của một nhà thầu uy tín là yếu tố then chốt.
Tại KHC, chúng tôi không chỉ trao cho bạn một bộ bản vẽ vô tri, mà chúng tôi cùng bạn hiện thực hóa nó thành tổ ấm vững chãi. Đội ngũ kỹ sư của KHC luôn sẵn sàng giải thích cặn kẽ từng chi tiết trong bản vẽ cho đến khi khách hàng thực sự thấu hiểu.
Nếu bạn đang có nhu cầu thiết kế hoặc cần tư vấn về giá xây nhà trọn gói, hãy liên hệ ngay với KHC để được hỗ trợ tận tình nhất.
