Trong lĩnh vực pháp lý, không gian làm việc không chỉ đơn thuần là nơi vận hành mà còn là yếu tố quan trọng góp phần xây dựng niềm tin và hình ảnh chuyên nghiệp đối với khách hàng. Một văn phòng luật sư được thiết kế bài bản sẽ giúp nâng tầm thương hiệu, đồng thời tối ưu hiệu suất làm việc.
Dự án thiết kế nội thất văn phòng luật sư The Sholi tại Bình Tân do King House thực hiện là minh chứng rõ nét cho sự kết hợp hài hòa giữa thẩm mỹ – công năng – giá trị thương hiệu, mang đến một không gian làm việc hiện đại, chuẩn mực và đầy cảm hứng.

Thiết kế nội thất văn phòng luật sư – Yếu tố tạo nên sự khác biệt
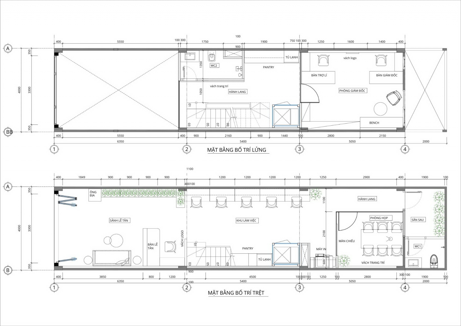
Văn phòng luật sư là nơi yêu cầu cao về sự chỉn chu, nghiêm túc và chuyên nghiệp. Vì vậy, thiết kế nội thất không chỉ đẹp mà còn phải thể hiện được tính kỷ luật và uy tín của đơn vị.
Tại dự án The Sholi, King House lựa chọn phong cách hiện đại với gam màu trung tính như xám – nâu – be, kết hợp cùng vật liệu hoàn thiện cao cấp và hệ thống ánh sáng được tính toán kỹ lưỡng. Tổng thể không gian mang lại cảm giác vững chắc, đáng tin cậy nhưng vẫn gần gũi và dễ tiếp cận.

Các yếu tố nhận diện thương hiệu được lồng ghép tinh tế trong thiết kế, giúp khách hàng ghi nhớ và tạo ấn tượng ngay từ lần đầu trải nghiệm. Đây cũng là xu hướng thiết kế văn phòng hiện đại được nhiều doanh nghiệp pháp lý ưu tiên lựa chọn hiện nay.
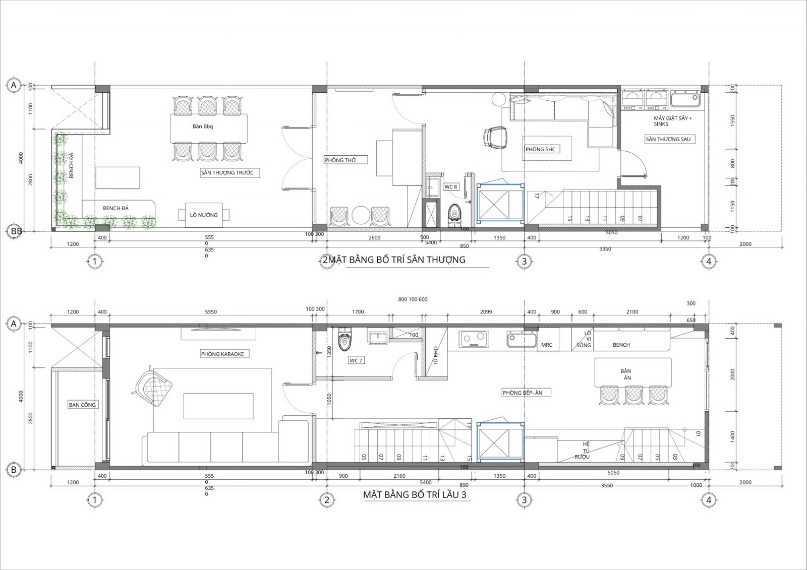
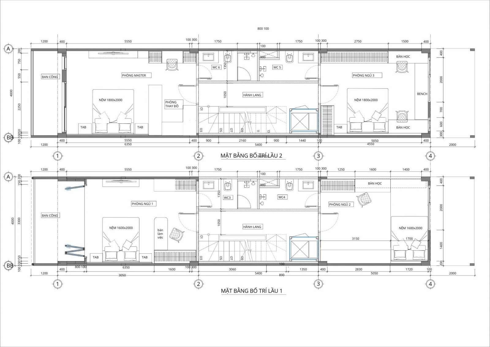
Giải Pháp Tối Ưu Công Năng Trong Thiết Kế Văn Phòng
Bên cạnh yếu tố thẩm mỹ, công năng luôn là tiêu chí được King House đặt lên hàng đầu khi thiết kế nội thất văn phòng luật sư.

Không gian được bố trí khoa học, đảm bảo sự liên kết giữa các khu vực làm việc, đồng thời vẫn giữ được sự riêng tư cần thiết cho đặc thù ngành nghề. Hệ tủ lưu trữ được thiết kế gọn gàng, tối ưu diện tích, giúp không gian luôn ngăn nắp và chuyên nghiệp.

Ánh sáng tự nhiên và nhân tạo được kết hợp hài hòa, mang lại môi trường làm việc thoải mái, hạn chế căng thẳng và nâng cao hiệu suất làm việc cho đội ngũ nhân sự.
Ngoài ra, việc bổ sung các mảng xanh trong không gian giúp cân bằng cảm xúc, tạo sự thư giãn nhẹ nhàng giữa những giờ làm việc căng thẳng – một chi tiết nhỏ nhưng mang lại giá trị lớn cho trải nghiệm tổng thể.

Xu Hướng Thiết Kế Nội Thất Văn Phòng Luật Sư Hiện Đại
Hiện nay, xu hướng thiết kế văn phòng luật sư đang hướng đến sự tối giản nhưng tinh tế, đề cao trải nghiệm người dùng và giá trị thương hiệu.
Các yếu tố thường được chú trọng bao gồm:
- Thiết kế không gian mở nhưng vẫn đảm bảo tính riêng tư
- Sử dụng vật liệu bền vững, thân thiện môi trường
- Tối ưu ánh sáng và thông gió tự nhiên
- Tích hợp nhận diện thương hiệu trong từng chi tiết nội thất
Dự án The Sholi chính là sự hội tụ đầy đủ của những xu hướng này, mang đến một không gian làm việc vừa hiện đại, vừa phù hợp với đặc thù ngành luật.
















King House – Đơn Vị Thiết Kế & Thi Công Nội Thất Văn Phòng Uy Tín
Với kinh nghiệm trong lĩnh vực thiết kế và thi công nội thất văn phòng, King House luôn đặt mục tiêu mang đến những giải pháp không gian tối ưu, phù hợp với nhu cầu và định hướng phát triển của từng doanh nghiệp.
Chúng tôi không chỉ tạo ra một không gian đẹp, mà còn giúp doanh nghiệp xây dựng hình ảnh chuyên nghiệp, nâng cao giá trị thương hiệu và tối ưu hiệu quả vận hành.
Dự án thiết kế nội thất văn phòng luật sư The Sholi tại Bình Tân là sự kết hợp hoàn hảo giữa thẩm mỹ, công năng và dấu ấn thương hiệu. Đây không chỉ là nơi làm việc, mà còn là không gian thể hiện rõ nét sự chuyên nghiệp và uy tín của doanh nghiệp trong mắt khách hàng.
Nếu bạn đang tìm kiếm giải pháp thiết kế nội thất văn phòng luật sư chuyên nghiệp, hãy để King House đồng hành và kiến tạo không gian làm việc đẳng cấp cho doanh nghiệp của bạn.
